Passer au contenu principal

Sport adapté

En France, 12 millions de personnes sont en situation de handicap(s). 80% des handicaps sont dit « invisibles » : difficultés sensorielles, psychiques, mentales et/ou cognitives. Faute d’équipements adaptés et d’éducateurs formés à leurs besoins, ces personnes ont trop peu accès à la pratique sportive en club, pourtant source d’épanouissement et de lien social. 

Depuis 2017, le Fonds de dotation Le Saint soutient des projets pour étoffer l’offre sportive Handisport et Sport Adapté sur le département. 

sport adapté mis en place à brest

Un club multisports dédié au Sport Adapté

  • Ce club permettra à des jeunes de 6 à 21 ans en situation de handicap psychique et/ou mental de pratiquer de nombreuses activités sportives qui ne sont jusqu’à présent pas proposées sur le territoire (sports de combat, danses…), ou de faire le lien avec des activités existantes dans les clubs du territoire. Ces jeunes auront la fierté d’évoluer dans la même enceinte que les joueurs du Stade Brestois 29. 

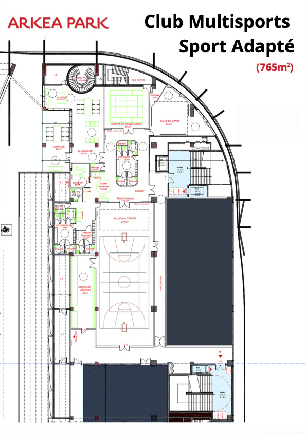
  • Le club multisports sera notamment équipé d’une salle de danse, d’un dojo, d’une salle multisports, de vestiaires… Il fera une surface totale de 765 m2. 

  • Le projet est développé en partenariat avec le Comité Départemental de Sport Adapté du Finistère. 

  • En partenariat avec l’association « Handisport Brest », les installations du club pourront également être utilisées pour enrichir l’offre Handisport sur la métropole de Brest.

club multisports avec sports adaptés à l'arkea park

Plan du Club Multisports Sport Adapté dans l’enceinte

Il sera aussi un lieu de « répit » et de ressources pour les familles : 

  • Les familles disposeront d’un espace dédié, un « Clubhouse » qui sera notamment équipé d’une cuisine pour partager des moments de convivialité et organiser des ateliers « nutrition » auprès des jeunes, des parents. 

  • Dans ce lieu, les familles pourront également bénéficier d’un accompagnement (permanences de professionnels…) et avoir accès à toutes les informations utiles (notamment sur l’offre sportive adaptée dans le département).

Chaque année, pendant la trêve de la ligue 1, Arkéa Park accueillera une compétition de Sport Adapté nationale ou régionale. Mettre l’enceinte d’un club d’élite au service de la visibilité du Sport Adapté est une puissante façon de changer les regards sur le handicap. 

765 m2
dédiés au club multisports Sport Adapté